Телефон:
+78123109744
Прием заявок:

ТКК "Карнавал"

Театрально-концертный комплекс «Карнавал» Санкт-Петербургского городского Дворца творчества юных– главная детская творческая площадка города в самом сердце Санкт-Петербурга! «Карнавал» был открыт в 1986 году и включает в себя учебные, репетиционные помещения и уникальный концертный зал, предназначенный для выступлений детских творческих коллективов города.

Сцена

Планы, фото, размеры сцены ТКК "Карнавал"

Параметры сцены

ЗЕРКАЛО СЦЕНЫ:
• ширина (по архитектурному порталу) –•ширина (по световому порталу) –
• ширина (по мягким декорациям) –
• высота (по архитектурному порталу) –
• высота (по мягким декорациям) -

ПЛАНШЕТ СЦЕНЫ:
• глубина (от антрактно-раздвижного занавеса до арьера) –
• ширина (по мягким декорациям) –
• глубина от авансцены до антрактно-раздвижного занавеса –
• глубина от авансцены до арьера –
• глубина от авансцены до стены арьера –
• ширина от стены до стены –
• закулисье (от штанкета до стены) –
• покрытие - линолеум
• цвет –черный
• возможность крепления декораций к планшету сцены (кроме степлера и гвоздей) – есть • оркестровая яма (зашита щитами)
•трюм для декораций

ВЫСОТНЫЕ ХАРАКТЕРИСТИКИ:
• высота до колосников –
• высота до 1-ой галереи –
• высота до 2-ой галереи –
• высота до 3-ей галереи –
• высота до 4-ой галереи –

МЕХАНООБОРУДОВАНИЕ:
• подъемно-опускной занавес –

ЗАГРУЗКА ДЕКОРАЦИЙ ОСУЩЕСТВЛЯЕТСЯ ЧЕРЕЗ ХОЛОДНЫЙ КАРМАН СЦЕНЫ:
• высота загрузки до пандуса –
• ворота: ширина –, высота (до тепловой завесы) –
• карман: ширина – м, высота –

•раздвижныепротивопожарныеворота(выход изкармананапланшетсцены): ширина–1,80м, высота–7м

ПРОЧИЕ ХАРАКТЕРИСТИКИ:
• вместимость зала – 735 мест (партер – 501 мест, балкон – 234 мест)
• одежда сцены - светлая одежда,
черная одежда –

вид со сцены
Зрительный зал
735 мест (501 партер, 234 балкон)
вид из зала
Занавес
схема выходов
Зрительный зал с обозначением выходов
Вид из зала
Сцена
Без размеров
Вид из зала
Сцена с размерами
Схема
План зрительного зала

Свет

Наличие приборов постановочного освещения на сцене, схема развеса оборудования

Оборудование постановочного освещения

Пульт Grand MA3 light

Прожектор динамического света COMMANDOR «Sistema» - 12 шт

Сканер «GALILEO III» - 8 шт

Прожектор AHR 1000 AO4A Art lighting - 120 шт

Прожектор SOURCE FOUR ETC 750 26* - 2 шт

Прожектор SOURCE FOUR ETC 750 19* - 18 шт

Прожектор Spotlight Combi 25 PC - 60 шт

Прожектор Spotlight Combi 12 PC - 50 шт

Прожектор DTC PAR 64 - 130 шт

Прожектор динамического света ROBE Robin LedBeam 150 - 4 шт

Прожектор заливного света Supernova LedTrack 48 - 10 шт

Амортизационный износ приборов динамического света не позволяет их длительное включение (более 2,5-3-х часов) без технологических перерывов.

Звук

Наличие звукового оборудования на сцене

Звуковое оборудование

P.A. Systeam

Tops: Meyer Sound mina - 6 шт

In fill: KME QS 1122 - 2 шт

Front fill: Meyer Sound upm 1p - 2 шт

Subs: KME QB 1181 - 8 шт

FOH

FOH: Yamaha CL 5 - 1 шт

StageBox foh: Yamaha Rio 1608-d - 1 шт

StageBox stage: Yamaha Rio 3224-d - 1 шт

PC: mac mini - 1 шт

CD: Tascam CD - 500B - 1 шт

Recorder: Tascam HD-R1 - 1 шт

Monitor system

Monitor: Electro-Voice zlx 12p - 2 шт

Side fill 1: KME QS 1122 - 2 шт

Side fill 2: KME QS 2122 - 2 шт


Microphone

Sennheiser e845 wireless - 7 шт

Sennheiser Receiver ew 100 G3 - 14 шт

Sennheiser Bodypack sk 100 G3 - 7 шт

Sennheiser E 614 - 3 шт

Sennheiser E 602 - 1 шт

Sennheiser plug on SKP 300 G3 - 4 шт

Sennheiser ME 64 - 2 шт

Sennheiser MZH 908 B - 10 шт

Sennheiser Adaptor MZA 900p - 3 шт

Audio Technica AE5400 - 2 шт

Audio Technica AE6100 - 2 шт

Audio Technica AT4041 - 1 шт

Audio Technica AT875R - 2 шт

Shure beta 57 - 10 шт

Shure beta 87 - 4 шт

Shure beta 58 - 4 шт

Shure beta 52 - 4 шт

Shure sm 57 - 2 шт

Shure sm 94 - 2 шт

Shure slx 2 sm 58 wireless - 1 шт

Shure ULX 2R4 beta 58 wireless - 2 шт

Shure mx418d/c - 2 шт

Shure mx 393 - 2 шт

Antelope audio edge note - 4 шт

AKG c411-pp - 2 шт

Telefunken m82 - 1 шт


Di-box BSS: AR133 - 4 шт


Mic stand

микрофонная стойка журавль - 26 шт

низкая микрофонная стойка журавль - 3 шт

Оператор сидит по центру зала

Видео

Наличие видео оборудования на сцене

Сцена


Экран (формат экрана 16x9) 15м х 7,5м

Проекторы:

NEC PX1004 UL – 4 шт. в аппаратной видеослужбы (2 совмещенных фронтальных, по 1 на порталы)

NEC PX1004 UL – 1 шт. на сцене – обратная проекция

Стационарный компьютер:

Windows - VMix, Apple macintosh - Resolume Arena


Фойе"Паркет"


NEC PX1004 UL – 1 шт. на лестнице в фойе зала с проекцией на белую стену

PANASONIC DZ12000E – 1 шт.на лестнице в фойе зала с проекцией на серую стену

Гардероб

ТВ панели (стационарные) – 4 шт.

Переносное оборудование

NEC NP NP43LP – 2 шт.

Ноутбуки Windows – Vmix

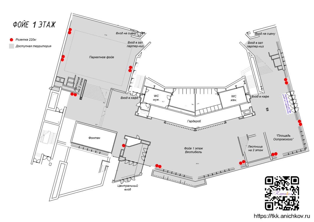
Фойе 1,2,3 этаж

Планы и схемы фойе ТКК "Карнавал"

Дополнительное оборудование

Столы, стойки, указатели

Стол раскладной (черные ножки)

9 штук

Цвет: Венге
Размер:
•Ширина: 75см
•Длина: 125 см
Ножки: Черные

Стол раскладной (Серебристые ножки)

12 штук

Цвет: Венге
Размер:
•Ширина: 70 см
•Длина: 120 см
Ножки: Серебристые

Стол раскладной

10 штук

Цвет: Орех
Размер:
•Ширина: 69 см
•Длина: 69 см

Стол раскладной (усиленный)

7 штук

ТОЛЬКО НА ТЕРРИТОРИИ ТКК

Цвет: Венге
Размер:
•Ширина: 60 см
•Длина: 120 см

Стойка золотая

штук

Красная лента3 метра

Высота 1м

Крепление для информационного блока

4 штуки

Насадка на золотую стойку

Формат А4

Стойка информационная

3 штуки

Высота 1м90см

Формат А3

Стойка информационная

5 штук

Высота 1м50см

Формат А3

Столб для информационной стойки

6 штук

Высота 2м20см

Формат A3

Информационная стойка (серая)

6 штук

Высота 1м

Формат А4

Информационная стойка (синяя)

20 штук

Высота 1м

Формат А4

Сеточная стойка для информации (белая)

10 штук

Высота 2м

Ширина 50см

Как проехать?

Адрес для навигатора: Санкт-Петербург, Невский проспект 39Д

Ссылка на Яндекс.Карты:https://yandex.ru/maps/?um=constructor%3A45a892f372331c38b1433e2159b95f83993a1d8c4a68466fe48a9dbd32afb3ed&source=constructorLink


Как пройти или проехать?

Интерактивная карта с маршрутами